Des unités pensées pour votre confort

Chaque unité offre un espace lumineux, fonctionnel et soigneusement aménagé. Avec une sélection de matériaux durables et un design harmonieux, nos unités créent un environnement accueillant où il est facile de se sentir chez soi.

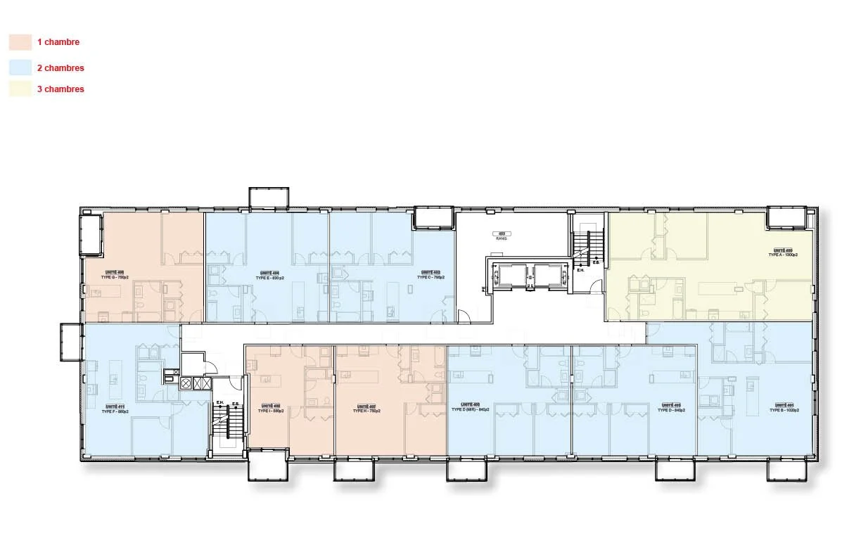
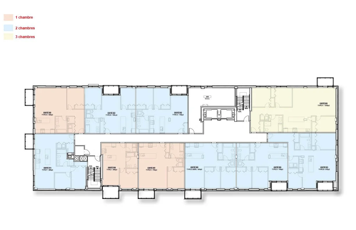
Rez-de-chaussée

Unité Étage Surface Chambres Dispo
100Rez-de-chaussée1430 pi²3Disponible
101Rez-de-chaussée1122 pi²2Disponible
102Rez-de-chaussée875 pi²2Disponible
103Rez-de-chaussée924 pi²2Disponible
104Rez-de-chaussée913 pi²2Disponible
105Rez-de-chaussée924 pi²2Disponible

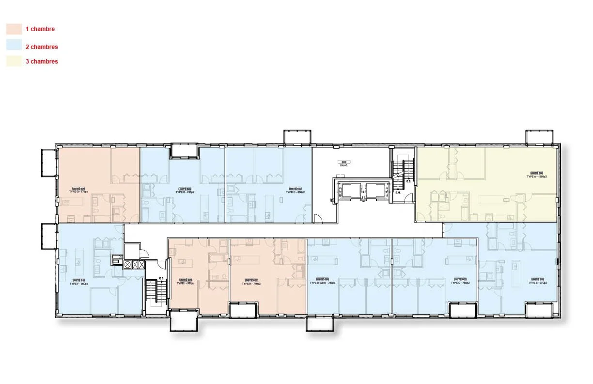
Étage 2

Unité Étage Surface Chambres Dispo
20021430 pi²3Dispo
20121122 pi²2Dispo
2022875 pi²2Dispo
2032924 pi²2Dispo
2042913 pi²2Dispo
2052924 pi²2Dispo
2062886 pi²1Dispo
2072825 pi²1Dispo
2092616 pi²1Dispo
2112946 pi²2Dispo

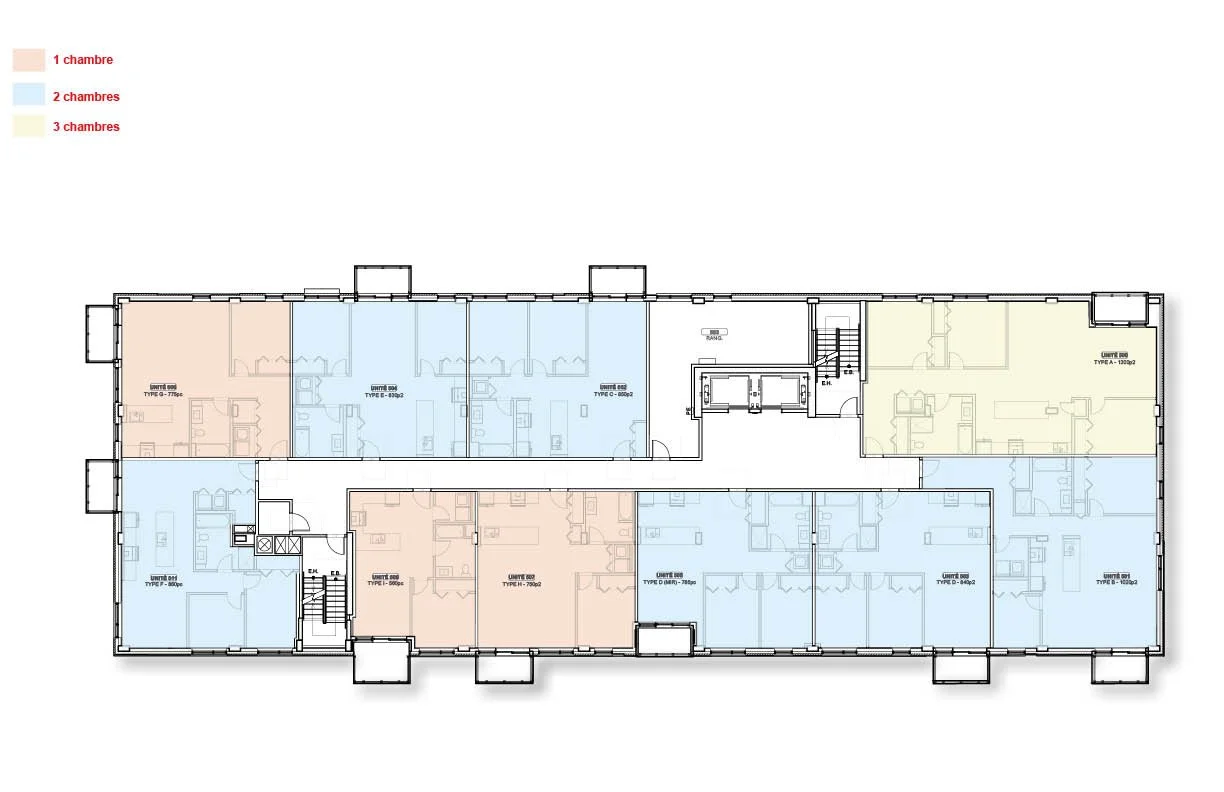
Étage 3

Unité Étage Surface Chambres Dispo
30031491 pi²3Dispo
30131067 pi²2Dispo
3023875 pi²2Dispo
3033864 pi²2Dispo
3043864 pi²2Dispo
3053924 pi²2Dispo
3063886 pi²1Dispo
3073825 pi²1Dispo
3093616 pi²1Dispo
3113946 pi²2Dispo

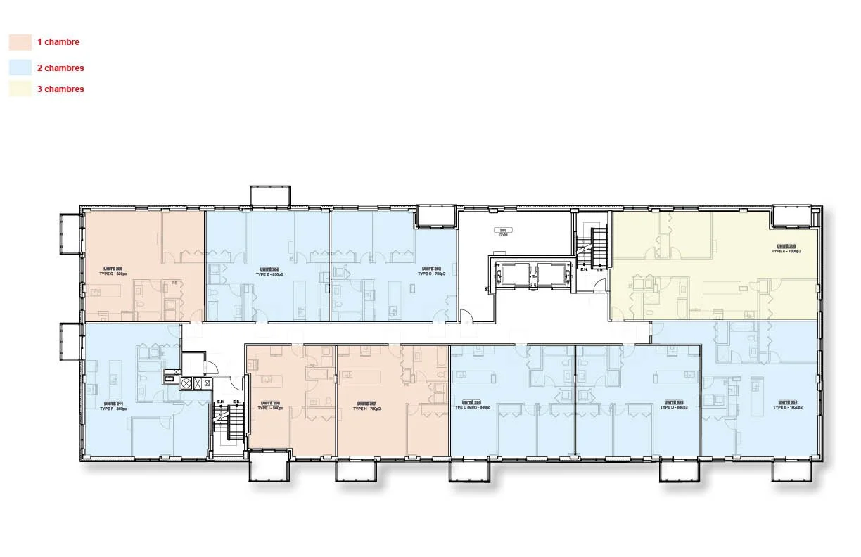
Étage 4

Unité Étage Surface Chambres Dispo
40041430 pi²3Dispo
40141122 pi²2Dispo
4024875 pi²2Dispo
4034924 pi²2Dispo
4044913 pi²2Dispo
4054924 pi²2Dispo
4064825 pi²1Dispo
4074825 pi²1Dispo
4094616 pi²1Dispo
4114946 pi²2Dispo

Étage 5

Unité Étage Surface Chambres Dispo
50051430 pi²3Dispo
50151122 pi²2Dispo
5025935 pi²2Dispo
5035924 pi²2Dispo
5045913 pi²2Dispo
5055864 pi²2Dispo
5065853 pi²1Dispo
5075825 pi²1Dispo
5095616 pi²1Dispo
5115946 pi²2Dispo

Étage 6

Unité Étage Surface Chambres Dispo
60061491 pi²3Dispo
60161067 pi²2Dispo
6026935 pi²2Dispo
6036864 pi²2Dispo
6046864 pi²2Dispo
6056864 pi²2Dispo
6066853 pi²1Dispo
6076781 pi²1Dispo
6096616 pi²1Dispo
6116946 pi²2Dispo

L’unité qui pourrait bien devenir votre coup de cœur !

Conçue pour allier confort et fonctionnalité, cette unité lumineuse offre un espace chaleureux où il fait bon vivre. Chaque détail a été pensé pour vous offrir praticité et bien-être au quotidien.

Faites le premier pas vers votre nouveau chez-vous !

Remplissez le formulaire ci-dessous pour obtenir les plans, les prix et la disponibilité des unités du LE625. Une résidence moderne, élégante et disponible des 2026. Ne tardez pas !